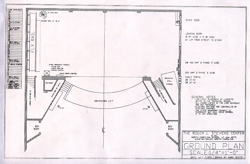
Groundplan

groundplan